P R O Y E C T O D E U N I Q R E S I D E N T I A L
«La fachada de un edificio es la relación de éste con la ciudad y otra muy distinta son los interiores, la distribución, la concepción de la vivienda; lo que resuelve las necesidades de los clientes. Deben haber una coherencia entre ambas partes para que el resultado del proyecto sea redondo. Nuestra especialidad son los interiores.» Celesti Ventura, CEO UNIQ Residential y presidente del Colegio de Arquitectos y aparejadores de Barcelona
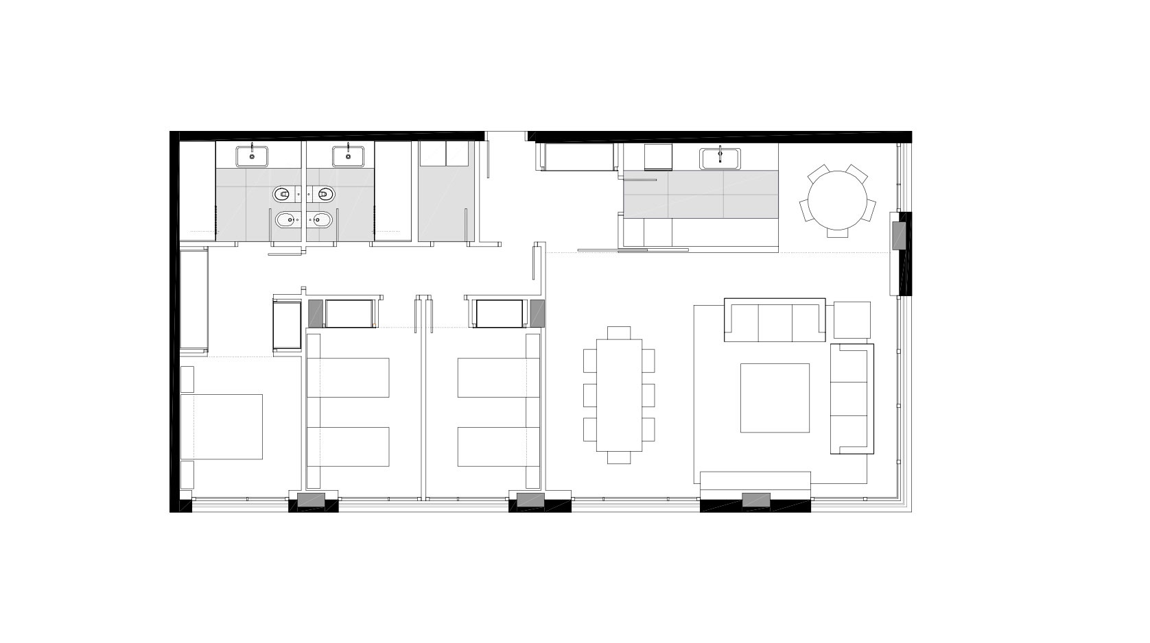
UNIQ RESIDENTIAL junto con la arquitecta Sara de la Mata, han sido los responsables a la hora de definir el concepto de habitabilidad de este edificio situado en la emblemática zona de los ministerios en Madrid. Con solo echar un vistazo a la planta de distribución, se aprecia el concepto de espacios abiertos e interconectados con un enfoque racional que permite aprovechar al máximo la planta disponible y organizar la vivienda en base a la zona de vida con los espacios comunes orientados a las fachadas principales y hacia la luz, y la zona de dormitorios, en el lado opuesto o más reservado.
Carré, como colaborador habitual de confianza de UNIQ, ha trabajado todo lo referente a revestimientos, puertas, armarios que se ajustan a cada espacio, con madera natural, fabricados e instalados con exquisitez y detalle.
UN CONCEPTO DE DISTRIBUCIÓN QUE RESPONDE A LAS NECESIDADES DEL USUARIO
«Como especialistas en distribuciones, en UNIQ, creamos viviendas en las que a través del equipamiento interior se resuelvan la funcionalidad e intercomunicación de los espacios. En este proyecto de Plaza San Juan de la Cruz en Madrid, se organizó la planta con una clara división de ésta en las 4 áreas de vida principales: zona húmeda, zona de aguas, zona de noche y zona de día, siendo ésta la que se entrega a la fachada principal exterior del edificio.